-
Bộ Công an truy nã bị can Lê Trung Khoa về tội chống phá Nhà nước -
Gia đình tỷ phú Phạm Nhật Vượng vừa xuất hiện tại lễ trao giải VinFuture 2025: Chi tiết trang phục "Làm nên lịch sử" thu hút mọi ánh nhìn -
Vụ bé trai 6 tuổi ở Gia Lai tử vong khi giấu việc bị chó cắn: Gia đình sốc nặng khi mất con mãi mãi -
Vụ chủ kênh "Hà và Việt Nam" ăn chặn tiền từ thiện: Lộ diện thủ đoạn tinh vi, công an khẩn trương tìm người liên quan -
Cloudflare lại gặp sự cố, hàng loạt dịch vụ lớn đột ngột sập trên toàn cầu -
Vụ kêu gọi ủng hộ miền Trung nhưng "30.000 thì khỏi": Cán bộ dân phố Hà Nội bị yêu cầu rút kinh nghiệm -
Nạn nhân thoát chết trong vụ cháy quán ăn khiến 4 người chết kể lại giây phút sinh tử: "Không nhảy sẽ chết ngạt" -
"Lỡ" phát loa truyền thanh lúc 3h sáng, chính quyền vội vàng đăng đàn xin lỗi người dân, thông báo lý do xảy ra sự cố -
Clip nước biển chuyển hai màu kéo dài hàng chục km, gây "sốt" mạng xã hội -
Nữ sinh gây bão mạng với ảnh nhạy cảm: Đại học Thăng Long lên tiếng đính chính sự thật sốc
Đời sống
05/07/2022 23:06Ngôi nhà độc lạ như ốc đảo thu nhỏ ở huyện nghèo tỉnh Sơn La nổi tiếng trên tạp chí Mỹ

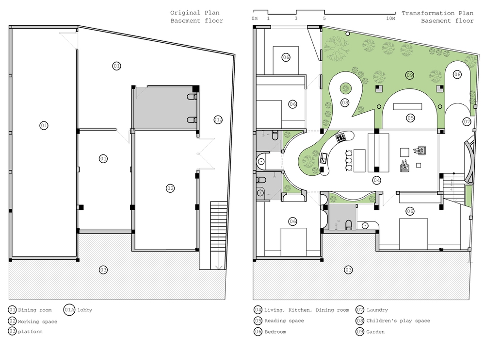
Do không gian cũ của ngôi nhà là sự đan xen giữa kinh doanh và ở, điều này gây ra rất nhiều bất tiện cho cuộc sống gia đình và ảnh hưởng không nhỏ đến việc kinh doanh của quán.

Mục đích của việc thiết kế là cải tạo lại ngôi nhà để tạo không gian riêng biệt, đảm bảo việc kinh doanh cũng như môi trường sống cho các thành viên trong gia đình đông thế hệ, đông con.
Không gian sống của gia đình đã được hạ thấp (bán phần âm), nơi mọi người có thể nhìn thấy cánh đồng lúa. Phần trên dành cho khu nhà hàng với các không gian chức năng như sân để xe, khu bếp ăn, bếp củi để phục vụ các món ăn dân tộc.




Các phòng chức năng của nhà hàng được phân bố ở tầng 1 gồm các phòng khép kín và tầng 2 có hội trường lớn. Cầu thang cũ được nối trực tiếp từ sân đi lên, tạo thành lối đi riêng lên tầng trên.



Việc tận dụng các vật liệu cũ sẵn có tại địa phương và một phần của ngôi nhà cổ giúp việc xây dựng trở nên đơn giản hơn và phù hợp với người dân địa phương nơi đây vẫn là một huyện nghèo của tỉnh Sơn La.
Ngôi nhà là sự tiếp nối của những cánh đồng lúa để có không gian xanh. Màu đỏ của gạch mới và cũ hòa quyện tạo nên một cái gì đó đặc biệt nhưng hài hòa. Nó là sự tiếp nối của cái mới và cái cũ, của sự thay đổi và phát triển.



Kiến trúc sư: Trung Tran Studio
Diện tích: 600m²
Năm: Năm 2021
Ảnh: Triệu Chiến
Nhà sản xuất: AutoDesk, Xingfa
Kiến trúc sư trưởng: Trần Mạnh Trung
Theo Hải Yến (Toquoc.vn)
- Đây là iPhone nhỏ gọn rẻ nhất Việt Nam, màn OLED vẫn cực xịn, hiệu năng không thua iPhone 17 nhiều (05/12/25 23:00)
- Thực hư hiện tượng "biển âm dương" xuất hiện ở Cà Mau, chính quyền địa phương lý giải nguyên nhân (05/12/25 22:32)
- Bắc Ninh: Nữ nhân viên quán ăn xin hút thử thuốc lá điện tử rồi bất tỉnh tại chỗ, bị tổn thương não nặng (05/12/25 22:00)
- Không ít trẻ em đột quỵ, bác sĩ cảnh báo các dấu hiệu quan trọng giúp cha mẹ nhận rõ nguy hiểm (05/12/25 21:35)
- Ninh Bình: Lén đốt pháo, bé trai 12 tuổi gặp thảm kịch khiến cả gia đình bàng hoàng (05/12/25 21:20)
- EU công bố kế hoạch dùng tài sản Nga bị đóng băng để hỗ trợ Ukraine (05/12/25 21:02)
- Nữ Việt Nam thắng Nữ Malaysia 7-0 trong trận mở màn SEA Games 33 (05/12/25 20:55)
- Đề xuất quy định kê khai, tính thuế, sử dụng hóa đơn điện tử của hộ kinh doanh, cá nhân kinh doanh (05/12/25 20:43)
- Động thái bất ngờ của hãng xe công nghệ trước thông tin Hà Nội cấm xe máy xăng vào vành đai 1 (05/12/25 20:30)
- Bộ Công an truy nã bị can Lê Trung Khoa về tội chống phá Nhà nước (05/12/25 20:23)